横浜市で不動産売買をお考えなら仲介手数料最大無料の建和株式会社 > 横浜市中区本牧原の物件
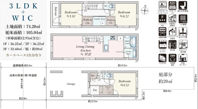
3LDKの物件は室内も広々としており、開放感があります。建物面積は105.04㎡です。仲介手数料無料なので、初期費用を抑えたい方にオススメです。新築の戸建て物件です。横浜市中区にある京浜東北線石川町周辺で物件をお探しの際に、何か気になる点がありましたら建和のinfo@kenone.co.jpまでご連絡下さい。
仲介手数料無料!お気軽にお問合せくださいinfo@kenone.co.jp /08070587312
仲介手数料無料!お気軽にお問合せくださいinfo@kenone.co.jp /08070587312
※写真や図と実際の現状とが異なる場合は現状を優先させていただきます。











(※元利均等方式 金利5.00%まで ※返済年数5~50年まで入力できます)
(※ボーナスは年2回で計算しています。1000万円まで入力できます)
(※物件購入時、その他諸費用が発生する場合がございます)
| 所在地 | 神奈川県横浜市中区本牧原 | ||
|---|---|---|---|
| 交通 | |||
| 間取り/詳細 | 3LDK/ | 建物面積(坪数) | 105.04㎡(31.77坪) |
| 価格 | 4,980万円 | ||
| 駐車場/月額料金 | -/- | ||
| 土地の敷金/保証金 | -/- | 借地料/借地期間 | -/- |
| 土地権利 | - | 土地面積(坪数) | 74.20㎡(22.44坪) |
| 傾斜地部分面積 | - | 路地状敷地 | - |
| 私道負担面積/セットバック | -/- | 高圧線下面積 | - |
| 地目/地勢 | -/- | 接道状況 | - |
| 建ぺい率/容積率 | -/- | 用途地域 | 第一種住居 |
| 都市計画 | - | 種別/構造 | 新築一戸建/- |
| 階建 | - | 築年月(築年数) | 2025年 10月 (新築) |
| 総区画数/販売区画数 | -/- | 向き | - |
| 現況 | - | その他の法令上の制限 | - |
| 取引態様/引渡時期 | 仲介/相談 | 建築確認番号 | - |
| 物件番号 | 93125043 | 取引条件の有効期限 | 2025年11月20日 |
| 設備条件 |
|
||
| 備考 | 新築の戸建て物件で、夢のマイホーム生活を送りませんか。初期費用を抑えたい方にオススメの仲介手数料無料の物件です。105.04㎡の建物面積でスペースの面でも問題なく快適に過ごせますよ。新天地で新生活を始めるのであれば、豊富な不動産情報をご用意した建和までお問い合わせください。きっと素敵なお住まいが見つかります。 | ||
| 取扱会社 |
|
||
| QRコード |
このQRコードを読み取ることで、スマホでも物件情報を確認できます。 |
||
※地図上に表示される物件の位置は付近住所に所在することを表すものであり、実際の物件所在地とは異なる場合がございます。
横浜市中区以外の市区町村から探す