横浜市で不動産売買をお考えなら仲介手数料最大無料の建和株式会社 > ★仲介手数料半額★麹町パークハウス(麹町駅から徒歩2分の立地にあるランドマーク型分譲マンション)
お湯を沸かし直せる追い焚き機能付きです。防犯カメラが付いており、安全面も配慮されています。物件から徒歩2分のところに駅があるので、移動時間に余裕を持つことができます。駐車料金は1ヵ月あたり30000円となっています。帰ってくるとほっとするようなお住まいが良いですよね。ご希望にマッチした不動産を購入して、さらに快適な毎日を送りましょう。











(※元利均等方式 金利5.00%まで ※返済年数5~50年まで入力できます)
(※ボーナスは年2回で計算しています。1000万円まで入力できます)
(※物件購入時、その他諸費用が発生する場合がございます)
| 所在地 | 東京都千代田区麹町4丁目5-7 | ||
|---|---|---|---|
| 交通 | |||
| 間取り/詳細 |
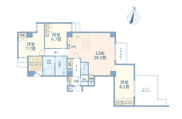
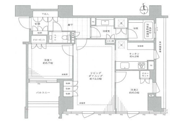
2LDK LDK 16.2帖 |
||
| 専有面積/バルコニー面積 | 72.41㎡/4.59㎡ | ルーフバルコニー面積/テラス面積/専用庭面積 | -/-/- |
| 価格 | 3億円 | ||
| 管理費 | 27,468円 | ||
| 修繕積立金 | 10,100円 | 修繕積立基金 | - |
| 権利金 | - | 駐車場/月額料金 | 空有/30,000円 (税込) |
| 土地の敷金/保証金 | -/- | 借地料/借地期間 | -/- |
| 土地権利 | 所有権 | 国土法届出要否 | 不要 |
| 用途地域 | - | 地勢 | 平坦 |
| 種別/構造 | 中古マンション/鉄筋コンクリート | 向き | 南 |
| 築年月(築年数) | 2011年 6月 (築14年) | ||
| 所在階/階建 | 5階/19階建 地下2階 | 棟総戸数/販売戸数 | 70戸/1戸 |
| 管理組合有無 | 有 | 管理形態 | 管理会社に全部委託 |
| 管理員の勤務形態 | 日勤 | 管理会社 | 三菱地所コミュニティ |
| 取引態様 | 仲介 | 現況 | 居住中 |
| 引渡し | 相談 | 建築確認番号 | - |
| 物件番号 | 94310671 | 取引条件の有効期限 | 2026年02月20日 |
| 設備条件 |
|
||
| 備考 | 1ヶ月の駐車場利用料は30000円です。空き巣対策には、防犯カメラが役に立ちます。デザイン性のあるシステムキッチン付きなので、キッチンがお洒落なスペースになっています。千代田区エリアで住まいを探すなら、生活環境が充実している有楽町線麹町近辺はいかがですか。住まい探しについては050-3552-7312またはinfo@kenone.co.jpまでお問い合わせ下さい。 | ||
| 取扱会社 |
|
||
| QRコード |
このQRコードを読み取ることで、スマホでも物件情報を確認できます。 |
||
※地図上に表示される物件の位置は付近住所に所在することを表すものであり、実際の物件所在地とは異なる場合がございます。
★仲介手数料半額★麹町パークハウス(麹町駅から徒歩2分の立地にあるランドマーク型分譲マンション)に関するこだわり条件から探す