横浜市で不動産売買をお考えなら仲介手数料最大無料の建和株式会社 > 横浜市青葉区荏田西の物件
★仲介手数料無料★
駐車が2台できるので、様々な用途に使えます。仲介手数料無料でご紹介できます。初めてのマイホームに新築戸建てはいかがでしょうか。住みやすい空間の条件の1つに前面道路が6m以上あるところを入れてみては。まずは建和のスタッフにご希望条件をお申し付けください。条件にマッチした不動産情報をご用意いたします。











(※元利均等方式 金利5.00%まで ※返済年数5~50年まで入力できます)
(※ボーナスは年2回で計算しています。1000万円まで入力できます)
(※物件購入時、その他諸費用が発生する場合がございます)
| 所在地 | 神奈川県横浜市青葉区荏田西4丁目13-25 | ||
|---|---|---|---|
| 交通 | |||
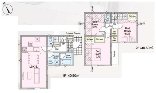
| 間取り/詳細 | 3LDK/ | 建物面積(坪数) | 81.00㎡(24.5坪) |
| 価格 | 6,580万円 | ||
| 駐車場/月額料金 | 有(2台)/- | ||
| 土地の敷金/保証金 | -/- | 借地料/借地期間 | -/- |
| 土地権利 | 所有権 | 土地面積(坪数) | 103.10㎡(31.18坪) |
| 傾斜地部分面積 | - | 路地状敷地 | - |
| 私道負担面積/セットバック | -/無 | 高圧線下面積 | - |
| 地目/地勢 | -/- | 接道状況 | 一方(南西 公道 6.5m) |
| 建ぺい率/容積率 | -/- | 用途地域 | 第一種低層住居専用 |
| 都市計画 | - | 種別/構造 | 新築一戸建/木造 |
| 階建 | 2階建 | 築年月(築年数) | 2025年 6月 (新築) |
| 総区画数/販売区画数 | -/- | 向き | - |
| 現況 | 完成済み | その他の法令上の制限 | - |
| 取引態様/引渡時期 | 仲介/相談 | 建築確認番号 | 第122485号 |
| 物件番号 | 96054252 | 取引条件の有効期限 | 2025年11月20日 |
| 設備条件 |
|
||
| 備考 | 安心の前面道路6m以上の条件を備えております。家族が多い方には、2台の駐車が可能なので、便利です。新築の戸建て物件です。何かと出費のかさむ引越しですが、こちらの物件は仲介手数料が無料です。横浜市青葉区には多種多様な不動産情報がございます。お引っ越しをお考えであれば、info@kenone.co.jpからお問い合わせください。 | ||
| 取扱会社 |
|
||
| QRコード |
このQRコードを読み取ることで、スマホでも物件情報を確認できます。 |
||
※地図上に表示される物件の位置は付近住所に所在することを表すものであり、実際の物件所在地とは異なる場合がございます。
横浜市青葉区以外の市区町村から探す
横浜市青葉区の町名から探す