横浜市で不動産売買をお考えなら仲介手数料最大無料の建和株式会社 > ★仲介手数料無料★グランスイート虎ノ門(PREMIRE FLOOR 最上階南東角住戸)
日常生活で利用頻度の高い水回りだからこそ、使い勝手のいいシステムキッチンを選んでみませんか。入浴時間を気にする必要のない追焚機能のある浴室です。浴室乾燥機付きの物件なので、雨の日で濡れた上着や傘もすぐに乾燥できます。快適な環境はとても大事ですよね。不動産情報をお求めでしたら、日比谷線虎ノ門ヒルズ周辺できっと見つかるでしょう。info@kenone.co.jpに当社までお気軽にお問い合わせ下さい。
11月2日 値下げ











(※元利均等方式 金利5.00%まで ※返済年数5~50年まで入力できます)
(※ボーナスは年2回で計算しています。1000万円まで入力できます)
(※物件購入時、その他諸費用が発生する場合がございます)




| 所在地 | 東京都港区虎ノ門1丁目21-10 | ||
|---|---|---|---|
| 交通 | |||
| 間取り/詳細 |
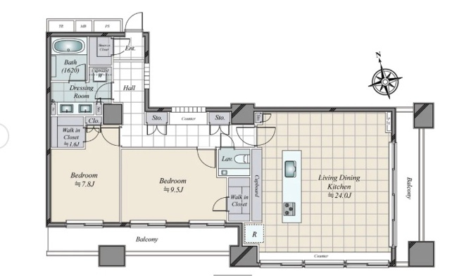
2LDK LDK 24.0帖 |
専有面積 | 111.96㎡ |
| バルコニー面積 | 26.79㎡ | ルーフバルコニー面積/テラス面積/専用庭面積 | -/-/- |
| 価格 | 6億2,800万円 | ||
| 管理費 | 33,610円 | 駐車場/月額料金 | 空無/- |
| 利回り | 表面1.57%/- | ||
| 修繕積立金 | 38,610円 | 修繕積立基金 | - |
| 土地権利 | 所有権 | 国土法届出要否 | 不要 |
| 用途地域 | - | 地勢 | 平坦 |
| 種別/構造 | 中古マンション/鉄筋コンクリート | 向き | 北東 |
| 築年月(築年数) | 2007年 4月 (築18年) | ||
| 所在階/階建 | 20階/21階建 地下1階 | 棟総戸数/販売戸数 | 122戸/1戸 |
| 管理組合有無 | 有 | 管理形態 | 管理会社に全部委託 |
| 管理員の勤務形態 | 日勤 | 管理会社 | 穴吹ハウジングサービス |
| 取引態様 | 仲介 | 現況 | 空家 |
| 引渡し | 即時 | 建築確認番号 | - |
| 物件番号 | 98048242 | 取引条件の有効期限 | 2025年11月20日 |
| リフォーム |
2025年9月 キッチン 浴室 トイレ 壁 床 全室 |
||
| 設備条件 |
|
||
| 備考 | 防犯カメラ付きで、空き巣対策にも配慮されています。オートロック設備が付いており、防犯性が高いです。浴室乾燥機付きの物件なので、雨の日で濡れた上着や傘もすぐに乾燥できます。住み心地がしっかりと考えられた中古マンションです。建和がオススメする不動産のご購入を検討された方は、お気軽にお問い合わせ下さい。快適に新生活が始められるよう、しっかりとサポートいたします。 | ||
| 取扱会社 |
|
||
| QRコード |
このQRコードを読み取ることで、スマホでも物件情報を確認できます。 |
||
※地図上に表示される物件の位置は付近住所に所在することを表すものであり、実際の物件所在地とは異なる場合がございます。
★仲介手数料無料★グランスイート虎ノ門(PREMIRE FLOOR 最上階南東角住戸)に関するこだわり条件から探す