横浜市で不動産売買をお考えなら仲介手数料最大無料の建和株式会社 > ★仲介手数料無料★パークハウス平河町(御屋敷町の平河町アドレス)
浴室は冷めた湯を再び沸かせる追焚機能が付いています。機能的で使いやすいシステムキッチン付きなので、お料理を楽しめます。オートロックが付いた物件で、安心できる暮らしを送りましょう。来客が一目でわかるTVインターホン付き。建和がお客様の住まい探しをサポート致します。こだわりの条件やご要望などがございましたら、ぜひお聞かせ下さい。ご連絡をお待ちしております。











(※元利均等方式 金利5.00%まで ※返済年数5~50年まで入力できます)
(※ボーナスは年2回で計算しています。1000万円まで入力できます)
(※物件購入時、その他諸費用が発生する場合がございます)
| 所在地 | 東京都千代田区平河町1丁目6-13 | ||
|---|---|---|---|
| 交通 | |||
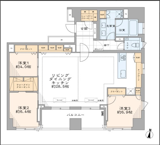
| 間取り/詳細 | 3LDK | ||
| 専有面積/バルコニー面積 | 111.09㎡/- | ルーフバルコニー面積/テラス面積/専用庭面積 | -/-/- |
| 価格 | 3億9,990万円 | ||
| 管理費 | 39,430円 | ||
| 修繕積立金 | 20,000円 | 修繕積立基金 | - |
| 権利金 | - | 駐車場/月額料金 | 空無/- |
| 土地の敷金/保証金 | -/- | 借地料/借地期間 | -/- |
| 土地権利 | 所有権 | 国土法届出要否 | 不要 |
| 用途地域 | 商業 | 地勢 | - |
| 種別/構造 | 中古マンション/鉄筋コンクリート | 向き | 南 |
| 築年月(築年数) | 2007年 9月 (築18年) | ||
| 所在階/階建 | 13階/14階建 地下1階 | 棟総戸数/販売戸数 | 55戸/1戸 |
| 管理組合有無 | 有 | 管理形態 | 管理会社に全部委託 |
| 管理員の勤務形態 | 日勤 | 管理会社 | 三菱地所コミュニティ |
| 取引態様 | 仲介 | 現況 | 空家 |
| 引渡し | 即時 | 建築確認番号 | - |
| 物件番号 | 98308464 | 取引条件の有効期限 | 2025年11月23日 |
| リフォーム |
2025年6月 キッチン 浴室 トイレ 壁 床 全室 2020年6月 大規模修繕 |
||
| 設備条件 |
|
||
| 備考 |
おでかけ好きな方には、駅から徒歩4分の駅近物件がおすすめです。防犯カメラが設置されており、空き巣などへの対策もしっかりとしています。この物件は快適な室内環境が魅力の中古マンションとなっています。床暖房の機能が付いています。不動産のことでお悩みでしたら、建和へお気軽にお問い合わせ下さい。ご要望やご質問などあれば承ります。 ☆新規内装リフォーム実施 2025年6月下旬完成☆ ◇キッチン◇ キッチン新規交換(食洗器付き) ◇洗面室◇ 洗面室新規交換 ◇浴室◇ 浴室新規交換(浴室乾燥機付き) ◇トイレ◇ トイレ新規交換 ◇その他◇ ・クロス張替 ・フローリング張替 ・建具交換 ・床暖房マット新規交換 ・給湯器交換(専有部分) ・照明新規交換 ・エアコン新規設置 ・ハウスクリーニング実施 |
||
| 条件(その他) | 固定資産税等年:27万7,600円 | ||
| 取扱会社 |
|
||
| QRコード |
このQRコードを読み取ることで、スマホでも物件情報を確認できます。 |
||
※地図上に表示される物件の位置は付近住所に所在することを表すものであり、実際の物件所在地とは異なる場合がございます。
★仲介手数料無料★パークハウス平河町(御屋敷町の平河町アドレス)に関するこだわり条件から探す