横浜市で不動産売買をお考えなら仲介手数料最大無料の建和株式会社 > ★仲介手数料無料★インペリアル広尾(ヴィンテージマンション・エレベーター停止階)
綺麗に整備された中古マンションで清潔感を感じます。バルコニーが付いています。浴室乾燥機のあるお風呂場は洗濯物を干すときにも便利です。不在時や家にいながら応対できないときでも宅配ボックスに荷物が届けられるので、配達時間を気にせずに生活を送ることができます。不動産のことで悩みがあるなら、建和にご連絡下さい。お客様のお悩みを解決できるよう、当社スタッフがしっかりとサポート致します。
| 所在階 | 価格 | 管理費 | 間取り | 専有面積 | 詳細 | 検討リスト |
|---|---|---|---|---|---|---|
| 4 | 7,680万円 | 14,000円 | 2LDK | 46.04㎡ | 詳細を見る | 追加する |











(※元利均等方式 金利5.00%まで ※返済年数5~50年まで入力できます)
(※ボーナスは年2回で計算しています。1000万円まで入力できます)
(※物件購入時、その他諸費用が発生する場合がございます)




| 所在地 | 東京都港区南麻布4丁目11-35 | ||
|---|---|---|---|
| 交通 | |||
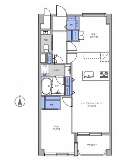
| 間取り/詳細 |
2LDK LDK 12.2帖 |
専有面積 | 56.33㎡ |
| バルコニー面積 | 4.84㎡ | ルーフバルコニー面積/テラス面積/専用庭面積 | -/-/- |
| 価格 | 9,999万円 | ||
| 管理費 | 17,120円 | 駐車場/月額料金 | 空無/- |
| 利回り | 表面3.78%/- | ||
| 修繕積立金 | 10,140円 | 修繕積立基金 | 16,777,215円 |
| 土地権利 | 所有権 | 国土法届出要否 | 不要 |
| 用途地域 | 商業 | 地勢 | 平坦 |
| 種別/構造 | 中古マンション/鉄骨鉄筋コンクリート | 向き | 南 |
| 築年月(築年数) | 1979年 9月 (築46年) | ||
| 所在階/階建 | 4階/8階建 | 棟総戸数/販売戸数 | 174戸/1戸 |
| 管理組合有無 | 有 | 管理形態 | 管理会社に全部委託 |
| 管理員の勤務形態 | 日勤 | 管理会社 | 三井不動産レジデンシャルサービス |
| 取引態様 | 仲介 | 現況 | 空家 |
| 引渡し | 相談 | 建築確認番号 | - |
| 物件番号 | 99109509 | 取引条件の有効期限 | 2026年01月24日 |
| リフォーム |
2025年1月 キッチン 浴室 トイレ 壁 床 全室 2025年8月 大規模修繕 |
||
| 設備条件 |
|
||
| 備考 | バルコニーをご活用いただけます。お湯を温め直せる追い焚き機能付きです。好評の駅近物件となっており、駅より徒歩7分に立地しています。宅配ボックス付き物件なので不在時の荷物受け取りもできます。安心して過ごせるお住まいを、港区にある日比谷線広尾周辺で検討してみませんか。住まいに関する事なら、建和までご連絡下さい。お待ちしております。 | ||
| 取扱会社 |
|
||
| QRコード |
このQRコードを読み取ることで、スマホでも物件情報を確認できます。 |
||
※地図上に表示される物件の位置は付近住所に所在することを表すものであり、実際の物件所在地とは異なる場合がございます。
★仲介手数料無料★インペリアル広尾(ヴィンテージマンション・エレベーター停止階)に関するこだわり条件から探す