横浜市で不動産売買をお考えなら仲介手数料最大無料の建和株式会社 > ★仲介手数料無料★ 磯子区磯子8丁目新築戸建
★仲介手数料無料★ 96.78平米程の建物面積でスペースも十分。しっかりとした耐震構造なので、激しい揺れにも耐えることができます。動線を意識したデザインのシステムキッチン付きで作業能率が上がります。キッチンを清潔に保つために便利な窓がついています。当社までのお問い合わせは、info@kenone.co.jpで承っております。横浜市磯子区で住まい探しをするなら、お気軽にご連絡ください。
1月20日 値下げ
※写真や図と実際の現状とが異なる場合は現状を優先させていただきます。











(※元利均等方式 金利5.00%まで ※返済年数5~50年まで入力できます)
(※ボーナスは年2回で計算しています。1000万円まで入力できます)
(※物件購入時、その他諸費用が発生する場合がございます)
| 所在地 | 神奈川県横浜市磯子区磯子8丁目12-20 | ||
|---|---|---|---|
| 交通 | |||
| 間取り/詳細 |
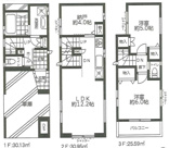
4LDK+2S(納戸)/ LDK 14.6帖 1室/和室 4.5帖 1室/洋室 4.5帖 1室/洋室 6.7帖 1室/洋室 7.2帖 1室/S 3.0帖 1室/S 2.0帖 |
建物面積(坪数) | 96.78㎡(29.27坪) |
| 価格 | 4,080万円 | ||
| 駐車場/月額料金 | 有(1台)/0円 | ||
| 土地の敷金/保証金 | -/- | 借地料/借地期間 | -/- |
| 土地権利 | 所有権 | 土地面積(坪数) | 100.10㎡(30.28坪) |
| 傾斜地部分面積 | - | 路地状敷地 | - |
| 私道負担面積/セットバック | -/要 1.91㎡ | 高圧線下面積 | - |
| 地目/地勢 | 宅地/- | 接道状況 | 一方(南西 私道 3.5m 間口 6.2m) |
| 建ぺい率/容積率 | 50%/100% | 用途地域 | 第一種低層住居専用 |
| 都市計画 | 市街化区域 | 種別/構造 | 新築一戸建/木造 |
| 階建 | 2階建 | 築年月(築年数) | 2026年 1月 (予定) |
| 総区画数/販売区画数 | 3区画/2区画 | 向き | 南東 |
| 現況 | 未完成 | その他の法令上の制限 | 宅地造成及び特定盛土等規制法/高度地区/準防火地域/不燃化推進地域 |
| 取引態様/引渡時期 | 仲介/相談 | 建築確認番号 | 第R07SHC111411号 |
| 物件番号 | 99470928 | 取引条件の有効期限 | 2026年02月21日 |
| 設備条件 |
|
||
| 備考 | 和室は居間や寝室、客間だけでなく目的に応じて活用できます。建物面積96.78平米なので、使い勝手がいいです。新築戸建てで新生活を始めてはいかがでしょうか。モニターから顔が見えるTVインターホン付きです。お先にinfo@kenone.co.jpから、お客様が思い描く暮らしを建和にお聞かせ下さい。横浜市磯子区の戸建て情報を豊富に取り揃えてご利用をお待ちしております。 | ||
| 取扱会社 |
|
||
| QRコード |
このQRコードを読み取ることで、スマホでも物件情報を確認できます。 |
||
※地図上に表示される物件の位置は付近住所に所在することを表すものであり、実際の物件所在地とは異なる場合がございます。
横浜市磯子区以外の市区町村から探す