横浜市で不動産売買をお考えなら仲介手数料最大無料の建和株式会社 > ★仲介手数料半額★TOKYO RESIDENCE (九段下駅前再開発計画始動・陽当たり良好なプラン)
オートロック設備が付いており、防犯性が高いです。駅徒歩4分という立地が魅力的な物件です。浴室乾燥機のあるお風呂場は洗濯物を干すときにも便利です。防犯カメラを設置しており、万が一のときも対応できます。建和に住まいに関してのご質問がありましたら、まずはinfo@kenone.co.jpからお問い合わせ下さい。東西線九段下エリアの事なら当社にお任せ下さい。











(※元利均等方式 金利5.00%まで ※返済年数5~50年まで入力できます)
(※ボーナスは年2回で計算しています。1000万円まで入力できます)
(※物件購入時、その他諸費用が発生する場合がございます)
| 所在地 | 東京都千代田区飯田橋2丁目18-1 | ||
|---|---|---|---|
| 交通 | |||
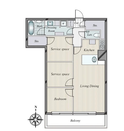
| 間取り/詳細 |
1LDK+2S(納戸) LDK/S/S/洋室 |
||
| 専有面積/バルコニー面積 | 66.90㎡/12.90㎡ | ルーフバルコニー面積/テラス面積/専用庭面積 | -/-/- |
| 価格 | 1億9,800万円 | ||
| 管理費 | 20,870円 | ||
| 修繕積立金 | 16,380円 | 修繕積立基金 | - |
| 権利金 | - | 駐車場/月額料金 | 空有/46,000円 (税込) |
| 土地の敷金/保証金 | -/- | 借地料/借地期間 | -/- |
| 土地権利 | 所有権 | 国土法届出要否 | 不要 |
| 用途地域 | 商業 | 地勢 | 平坦 |
| 種別/構造 | 中古マンション/鉄筋コンクリート | 向き | 南 |
| 築年月(築年数) | 2003年 2月 (築23年) | ||
| 所在階/階建 | 126階/29階建 地下2階 | 棟総戸数/販売戸数 | 249戸/1戸 |
| 管理組合有無 | 有 | 管理形態 | 管理会社に全部委託 |
| 管理員の勤務形態 | 日勤 | 管理会社 | 三井不動産レジデンシャルサービス |
| 取引態様 | 仲介 | 現況 | 居住中 |
| 引渡し | 相談 | 建築確認番号 | - |
| 物件番号 | 99531309 | 取引条件の有効期限 | 2026年02月20日 |
| リフォーム |
2019年1月 キッチン 浴室 トイレ 壁 床 |
||
| 設備条件 |
|
||
| 備考 | 徒歩4分の場所に駅があります。月額46000円で駐車場を利用することができます。専有面積51.13平方メートルですので快適な生活ができます。建和で快適な住環境をお求めなら、まずはinfo@kenone.co.jpまでお問い合わせ下さい。東西線九段下近辺の情報を豊富に取り扱っているので、是非ご利用下さい。 | ||
| 取扱会社 |
|
||
| QRコード |
このQRコードを読み取ることで、スマホでも物件情報を確認できます。 |
||
※地図上に表示される物件の位置は付近住所に所在することを表すものであり、実際の物件所在地とは異なる場合がございます。
★仲介手数料半額★TOKYO RESIDENCE (九段下駅前再開発計画始動・陽当たり良好なプラン)に関するこだわり条件から探す