横浜市で不動産売買をお考えなら仲介手数料最大無料の建和株式会社 > 横浜市西区北幸の物件
★仲介手数料無料★ こちらの物件は付近に駅が2つあるので、用途に合わせてご利用いただけます。マンションにどんな人が住んでいるのかも中古マンションなら事前に知れます。物件から駅まで徒歩9分です。京浜東北線横浜周辺でのお住まい情報なら、まずはinfo@kenone.co.jpまでお尋ねください。横浜市西区の不動産に詳しい、建和にお任せ下さい。
【外観】仲介手数料無料!お気軽にお問合せくださいinfo@kenone.co.jp /08070587312
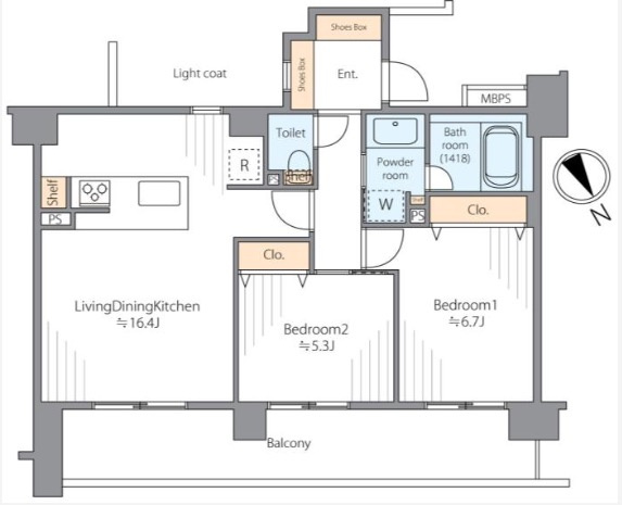
【間取り】仲介手数料無料!お気軽にお問合せくださいinfo@kenone.co.jp /08070587312
※写真や図と実際の現状とが異なる場合は現状を優先させていただきます。











(※元利均等方式 金利5.00%まで ※返済年数5~50年まで入力できます)
(※ボーナスは年2回で計算しています。1000万円まで入力できます)
(※物件購入時、その他諸費用が発生する場合がございます)
| 所在地 | 神奈川県横浜市西区北幸2丁目12-14 | ||
|---|---|---|---|
| 交通 | |||
| 間取り/詳細 | 2LDK | ||
| 専有面積/バルコニー面積 | 63.75㎡/- | ルーフバルコニー面積/テラス面積/専用庭面積 | -/-/- |
| 価格 | 8,290万円 | ||
| 管理費 | 8,610円 | ||
| 修繕積立金 | 8,930円 | 修繕積立基金 | - |
| 権利金 | - | 駐車場/月額料金 | 空有/ [空き台数]6台 |
| 土地の敷金/保証金 | -/- | 借地料/借地期間 | -/- |
| 土地権利 | 所有権 | 国土法届出要否 | 不要 |
| 用途地域 | 商業 | 地勢 | 平坦 |
| 種別/構造 | 中古マンション/鉄筋コンクリート | 向き | - |
| 築年月(築年数) | 2000年 11月 (築25年) | ||
| 所在階/階建 | 7階/11階建 | 棟総戸数/販売戸数 | 105戸/1戸 |
| 管理組合有無 | 有 | 管理形態 | 管理会社に全部委託 |
| 管理員の勤務形態 | 日勤 | 管理会社 | 日本管財株式会社 |
| 取引態様 | 仲介 | 現況 | - |
| 引渡し | 相談 | 建築確認番号 | - |
| 物件番号 | 99759534 | 取引条件の有効期限 | 2026年02月04日 |
| 設備条件 |
|
||
| 備考 |
専有面積は63.75㎡となっており広々とした空間で生活することができます。お気に入りの中古マンションで満足度の高い生活をしましょう。予定に合わせて使う駅を変えることができる、2駅利用OKな物件です。物件から駅まで徒歩9分です。横浜市西区は住環境が整っており快適に暮らせます。不動産情報をお求めの際はinfo@kenone.co.jpからお気軽に当社までお問い合わせ下さい。 建和(けんわ)ホームページは売主様の意向や、容量の問題でごくごく一部の物件しか掲載されていませんが、ホームページとは別に流通物件の全てがリアルタイムでネットげご覧いただけるシステムを導入しています。 「仲介手数料最大無料」でご紹介できる物件は、東京、神奈川全域で2万件以上ございます!ただし広告ができる物件はごくわずかです、、フリーメール、ニックネームでもかまいません。ぜひ、ご希望物件詳細を「info@kenone.co.jp」か「http://www.kenone.co.jp/member/ 」からご連絡下さい。お電話でも対応可能です「050-3552-7312」「080-7058-7312」までお気軽にご一報下さい! |
||
| 取扱会社 |
|
||
| QRコード |
このQRコードを読み取ることで、スマホでも物件情報を確認できます。 |
||
※地図上に表示される物件の位置は付近住所に所在することを表すものであり、実際の物件所在地とは異なる場合がございます。
横浜市西区北幸2丁目の中古マンションに関するこだわり条件から探す
横浜市西区以外の市区町村から探す